Zum Inhalt springen
Haustyp 130 PD 2
ca. 130 m² Wohnfläche mit 5,5 Zimmer auf 4 Etagen.
Projektbezogen können die Wohnflächen variieren.
REIHENENDHAUS / DOPPELHAUSHÄLFTE
Untergeschoss
Vorraum
5,10
Nutzfläche im UG
38,99
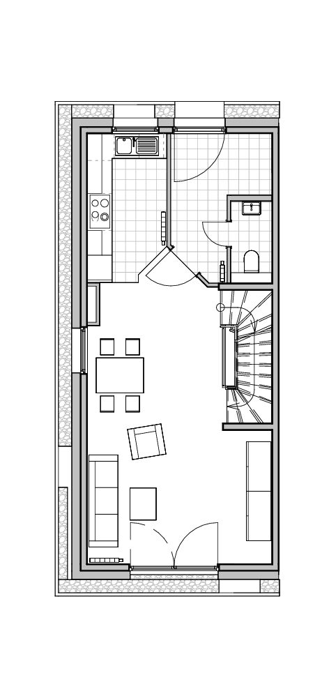
Erdgeschoss
Wohnen/Essen
27,08
Küche
6,67
Diele
6,19
WC
2,01
Flächen EG
41,95
Obergeschoss
Eltern
16,36
Kind 1
13,62
Bad
7,89
Flur
3,67
Flächen OG
41,54
Dachgeschoss
Kind 2
17,91
Kind 3
20,53
Flur
3,71
Flächen DG
42,15
HÄUSER
WOHNUNGEN
SENIOREN - UND PFLEGEIMMOBILIEN
PROJEKTE
REFERENZEN
INVESTMENT
UNTERNEHMEN
NACHHALTIGE
UNTERNEHMENSFÜHRUNG
WAS WIR BIETEN
MUSTERHÄUSER
BEI UNS ARBEITEN
NEWS VON WERNER WOHNBAU
HAUSVERWALTUNG UND VERMIETUNG
KONTAKT
HANDWERKER GESUCHT
GRUNDSTÜCK GESUCHT
Facebook
Instagram
Youtube
HÄUSER
WOHNUNGEN
SENIOREN - UND PFLEGEIMMOBILIEN
PROJEKTE
REFERENZEN
INVESTMENT
UNTERNEHMEN
NACHHALTIGE UNTERNEHMENSFÜHRUNG
WAS WIR BIETEN
MUSTERHÄUSER
BEI UNS ARBEITEN
NEWS VON WERNER WOHNBAU
HAUSVERWALTUNG UND VERMIETUNG
KONTAKT
HANDWERKER GESUCHT
GRUNDSTÜCK GESUCHT
Facebook
Instagram
Youtube