| Terrasse | 5,00 |
| Wohnen/Essen | 37,86 |
| Küche | 9,62 |
| Diele | 3,35 |
| Flächen EG | 55,12 |

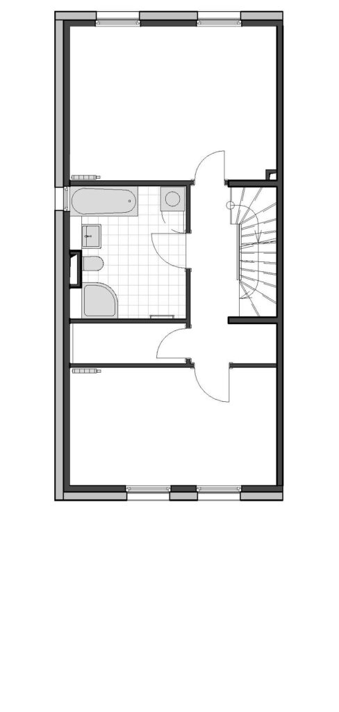
| Eltern | 19,81 |
| Kind 1 | 15,17 |
| Bad | 928 |
| Flur | 6,12 |
| Abstellraum | 2,91 |
| Flächen OG | 53,29 |

| Zimmer 1 | 16,12 |
| Zimmer 2 | 20,09 |
| Flur | 1,94 |
| Flächen DG | 38,15 |

| Terrasse | 5,00 |
| Wohnen/Essen | 37,86 |
| Küche | 9,62 |
| Diele | 3,35 |
| Flächen EG | 55,12 |

| Eltern | 19,81 |
| Kind 1 | 15,17 |
| Bad | 928 |
| Flur | 6,12 |
| Abstellraum | 2,91 |
| Flächen OG | 53,29 |

| Zimmer 1 | 16,12 |
| Zimmer 2 | 20,09 |
| Flur | 1,94 |
| Flächen DG | 38,15 |
