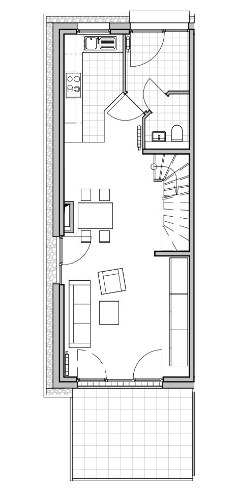
| Terrasse | 6,00 |
| Wohnen/Essen | 31,57 |
| Küche | 6,22 |
| Diele | 4,53 |
| WC | 2,38 |
| Flächen EG | 50,70 |

| Eltern | 16,01 |
| Kind 1 | 12,29 |
| Bad | 6,09 |
| Flur | 6,09 |
| Abstellraum | 1,90 |
| Flächen OG | 42,38 |

| Zimmer 1 | 11,81 |
| Zimmer 2 | 10,57 |
| Flur | 1,75 |
| Abstellraum | 3,44 |
| Flächen DG | 27,57 |

| Terrasse | 6,00 |
| Wohnen/Essen | 31,57 |
| Küche | 6,22 |
| Diele | 4,53 |
| WC | 2,38 |
| Flächen EG | 50,70 |

| Eltern | 16,01 |
| Kind 1 | 12,29 |
| Bad | 6,09 |
| Flur | 6,09 |
| Abstellraum | 1,90 |
| Flächen OG | 42,38 |

| Zimmer 1 | 11,81 |
| Zimmer 2 | 10,57 |
| Flur | 1,75 |
| Abstellraum | 3,44 |
| Flächen DG | 27,57 |
