| Terrasse | 6,00 |
| Wohnen/Essen | 29,49 |
| Küche | 6,70 |
| Diele | 3,36 |
| WC | 2,38 |
| Flächen EG | 47,93 |

| Eltern | 15,11 |
| Kind 1 | 14,10 |
| Bad | 6,89 |
| Flur | 3,74 |
| Flächen OG | 39,84 |

| Zimmer 1 | 12,03 |
| Zimmer 2 | 14,99 |
| Flur | 2,47 |
| Flächen DG | 29,49 |

| Terrasse | 6,00 |
| Wohnen/Essen | 29,49 |
| Küche | 6,70 |
| Diele | 3,36 |
| WC | 2,38 |
| Flächen EG | 47,93 |

| Eltern | 15,11 |
| Kind 1 | 14,10 |
| Bad | 6,89 |
| Flur | 3,74 |
| Flächen OG | 39,84 |

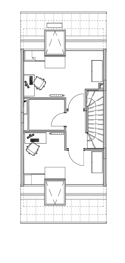
| Zimmer 1 | 12,03 |
| Zimmer 2 | 14,99 |
| Flur | 2,47 |
| Flächen DG | 29,49 |
